Email us at:
pej@pejnron.com
ron@pejnron.com

tiempo
usa1 argentinaflag

Click the sun to see the
weather in Buenos Aires!

Various Floor Plans

Various Floor Plans

This is the original floor plan, there are windows on 3 sides of the apartment facing West, North and East.  The upper left hand corner is the maid’s quarters with windows on 2 sides (lucky maid), then the next room to the right is a bedroom, then the next room to the right is the master bedroom.  Neither bedroom had an in-suite toilet.  The “cocina” on the left is the kitchen, next to the right is a bathroom, then another bathroom and then a 3rd bedroom.  The service entrance into the kitchen is at the lower left, then the main elevator and then the living / dining room area.

This is a newly generated image of the original floorplan done by the architects, the owners had converted the 3rd bedroom into a dining room by knocking the wall down and opening the space between the living room and the bedroom.  There were doors everywhere!

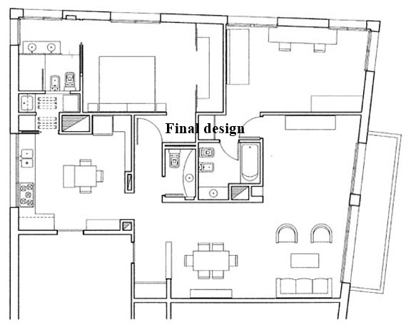
This was our original plan of the apartment remodeled.  The upper left which was the maid’s quarters is now an in-suite toilet with fantastic views (we’re on the 19th floor) and an open shower area.  The bathroom adjacent to the kitchen is removed to make the kitchen larger and allow for a center table and another raised work area, I told Alberto this area is for making ñoquies and he has to teach me how to make them after we move in..  The old hallway space between the bedrooms is used to make an in-suite bathroom with the office / guest room which will have large pocket doors so that we can open up the room for use during large parties, or close off the office for smaller parties and privacy.  A guest reception toilet is created and the foyer is removed to open up the space for when you first walk into the apartment off the elevator, you get a view through the balcony doors.

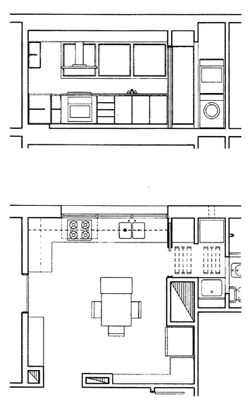
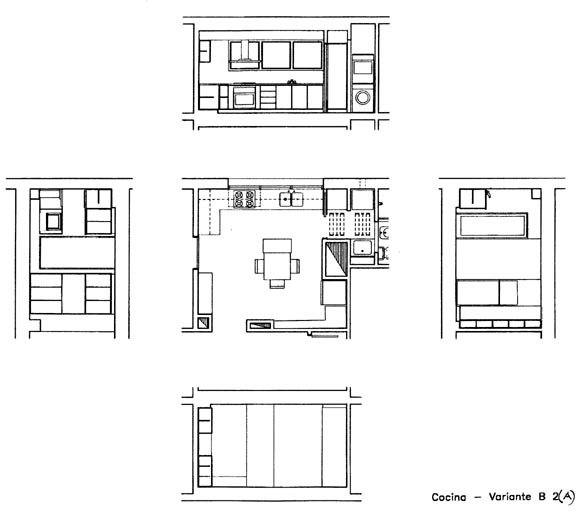
Kitchen from above (center)
the surrounding images are the elevations
You have to rotate your head to see them properly

Some kitchen details.

I wanted the entrance to the kitchen made as large as possible, Argentines love doors on kitchens because that is the domain of the maid and you don’t want to see her working, I wanted it opened up to make it part of the living space.

“The best laid plans!”  Once demolition began we discoverd that the bedroom walls were load bearing steel reinforced concrete walls and could not be removed or altered.  This caused us to change the floorplan slightly.  At first we were very dissapointed that we couldn’t make the changes we wanted, but like most things, we think things worked out even better with this new design.

The surrounding views are rotated 90 degrees to show the room “unfolding”